ROBLES 192

#Bioconstruccion #reusoagua #BTC#regeneracion #permacultura #vidanatural #naturaleza
#Bioconstruccion #reusoagua #BTC#regeneracion #permacultura #vidanatural #naturaleza
2016

ROBLES 192

Jurica, Querétaro

En este proyecto residencial nos enfrentamos a cómo resolver una vivienda plurifamiliar introduciendo sistemas sostenibles que pudieran independizar la vivienda de la energía y del agua, logrando una regeneración del entorno, así como usar block BTC de tierra compactada para minimizar el impacto de los materiales y lograr calidad en el proyecto. Algunas preguntas fueron las siguientes:

•¿Cómo organizar el programa en el terreno?

•¿Cómo proyectar nuestra casa sostenible desde el inicio del proyecto para conseguir una buena ventilación, iluminación en todos los espacios y una temperatura ideal sin el uso de energía auxiliar?

•¿Cómo organizar el espacio para tener una vivencia única?


Sostenibilidad

¿Sabías que el diseño bioclimático, la arquitectura vernácula, los materiales locales, la arquitectura del pueblo y de las tradiciones, la que responde a la cultura y al clima, ha existido siempre?

No estamos reinventando, sólo entendiendo...

Ingenierías- Estudio de factibilidad

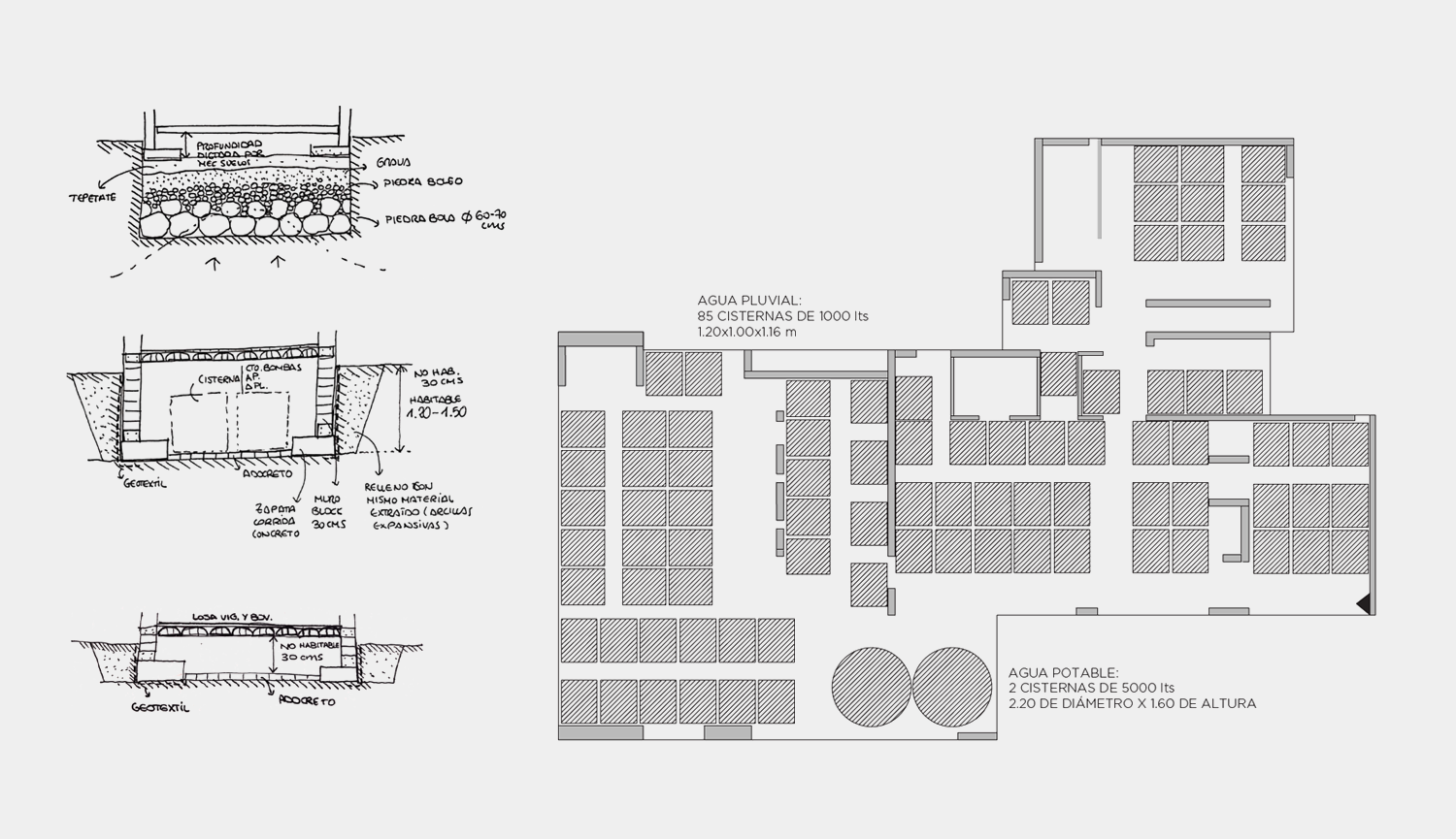
¿Qué pasa si en vez de excavar las arcillas expansivas y rellenar el suelo con una plataforma de tepetate, no usamos mejor esa excavación para albergar nuestras cisternas de almacenamiento de agua pluvial y poder ser independiente de la red de agua potable al 80%?

Materiales

Se presenta una comparativa de muros posibles para el proyecto, manifestando sus ventajas e inconvenientes así como su comportamiento térmico y costo de cada solución.

¿Podemos hacer entender a nuestro cliente la importancia de optar por una solución u otra?

Estudio de asoleamiento

Este estudio se vuelve fundamental para poder entender las condiciones interiores de iluminación, deslumbramiento y confort por ganancias solares.

Se realiza estudio de asoleamiento para entender la influencia del volado de la terraza en verano e invierno. Se estudia también la ubicación de la alberca y las sombras arrojadas de las edificaciones existentes, resultados que nos permiten concluir en la reubicación de la misma para evitar sombras.

Proyectos Relacionados

#sostenibilidad #industria #BTC #materialessostenibles #salud #iluminaciónnatural #dientessierra #asoleamiento #energyzero #ahorroagua

PAN 110

Corregidora, Querétaro

Bodega industrial destinada a almacenamiento de tinacos en Querétaro. Consta de un estacionamiento enterrado que aprovecha el desnivel del terreno, un espacio de bodega, y un bloque de oficinas con mezzanine. Se concibe el proyecto desde la esencia de la arquitectura bioclimática y las estrategias pasivas existentes para lograr confort en el interior. En este caso se opta por el uso de dientes de sierra para introducir iluminación natural, cuidando la orientación para evitar en todo momento el deslumbramiento directo al interior, así como para lograr una ventilación y evacuación de calor por la parte superior. En lo que respecta a los materiales, se opta por el uso de un BTC (bloque de tierra comprimida en muros) y un panel sándwich en cubierta para lograr inercia térmica, evitar el sobrecalentamiento de los cerramientos y contribuir a disminuir la huella de carbono al usar un material de bajas emisiones de CO2. En cuanto a la energía, se contempla el uso de paneles solares para lograr una bodega energy zero interconectada con la red. En agua, se realiza un estudio de factibilidad sustentable que nos permite, en base a superficies de cubierta y 20 m3 de almacenamiento, ahorrar el 55% del agua potable. Se estima un retorno de inversión para todas las tecnologías activas de 4 años. ¿Y si empezamos a visualizar así los proyectos industriales de pequeña escala, que son unos de los mayores consumidores de energía, agua, y generadores de residuos? ¿Cuánto podríamos contribuir a la reducción de emisiones de CO2, a la reducción de demanda de climatización y energía y de agua en una ciudad como Querétaro?

#sostenibilidad #neuroarquitectura # saludinterior #vocs

DENTAL CENTER

Juriquilla. Querétaro

Proyecto de interiorismo de una clínica dental en plaza existente. Su conceptualización se basó en la neuroarquitectura y la experiencia del usuario, así como en lograr un espacio saludable. ¿Cómo logramos que un local comercial ya existente pueda reducir sus consumos de climatización? ¿Cómo logramos que un lugar médico evite los contaminantes que respiramos y sea un espacio sano para las personas que vienen a consulta? ¿Cómo respetamos la presencia de marca y los colores corporativos? El proyecto consta de una pequeña sala de espera, un pasillo de intercomunicación y 4 salas de consulta. Para poder lograr los puntos comentados, recurrimos al uso de un material ecológico, que consta de certificaciones como el distintivo EMICODE, que garantiza una muy baja emisión de compuestos volátiles orgánicos en los materiales de construcción. La marca también reduce su consumo de energía, transporte y vertidos, disminuyendo al máximo las emisiones de CO2 en la capa de ozono. En cuanto a las pinturas seleccionadas para el proyecto, se tomaron criterios de bajos VOC (Compuestos Orgánicos Volátiles), es decir, áquellas que contienen una cantidad reducida de disolventes orgánicos, lo que las convierte en una opción más segura para la salud y el medio ambiente. En conclusión, los materiales empleados mejoran la calidad del aire interior y reducen el riesgo de exposición a sustancias químicas peligrosas.

#prefabricados #modular #ceroresiduos #circularidad #ceromantenimiento #panelessolares #regeneración #Diseñodisruptivo #reutilización #seguridad

CAM 27

El Campanario, Querétaro

Vivienda plurifamiliar de 1030 m2 construidos. El sistema constructivo se concibe en piezas prefabricadas de concreto gris oscuro con el fin de agilizar tiempos de obra y aprovechar todas las ventajas de la construcción prefabricada. Se plantea un despiece de 154 piezas de 3 a 11.50 m de altura para muros y de 54 losas de 5 x 3 m para entrepiso y losa de azotea con todas las instalaciones ocultas desde fabricación en las piezas. Se realizan 2 propuestas de terraza y en base a los análisis de asoleamiento y de confort, se toma una decisión de proyecto. Se estudia la fachada oeste para entender cómo influye el sobrecalentamiento y cómo protegerla con la celosía propuesta.

#thehubqueretaro #sportlife #sostenibilidad #reusoespacios #rehabilitación #naveindustrial #deporte #vidasana #padel #bikes

ST 23

Centro Sur, Querétaro

Concurso para reforma de nave industrial existente. Se pretende usar la nave para fines deportivos con un concepto de "street design" y de uso de materiales reciclados y prefabricados para construcción de áreas complementarias interiores. El programa incluye canchas de padel, crossfit, carriles bici que comunican con parque y lago exterior colindante, caminos de running, bikepark y locales comerciales relacionados con fitness, comida saludable, ropa sport, actividades lúdicas para niños y adultos. Todo el mobiliario se concibe con materiales reciclados, de reuso y que contribuyan a la circularidad.

#sostenibilidad #industria #panelessolares #reusoaguapluvial #camaratermografica #ahorroenergetico #prefabricado #modular #concreto

TER69

Querétaro

Nave industrial prefabricada. Se realiza el montaje de los muros de 10 cms de espesor en 11 dias. Consta de un área de bodega grande, un área de almacenamiento cerrado, oficina en planta baja, baños y un mezzanine. Se plantea el diseño con un sistema constructivo prefabricado que nos permite agilizar tiempos en obra, evitar el desperdicio de material y contribuir a un proyecto que minimiza los residuos, lograr confort en el interior y evitar el mantenimiento a futuro. En agua, se plantea la reutilización de agua de lluvia filtrada para inodoros y riego. En energía, se introducen paneles solares con microinversores para posibilitar el crecimiento de la instalación a futuro. En la cubierta se instala un panel sandwich. Se realizan pruebas de medición de temperatura, humedad, y de temperaturas superficiales de los paramentos de cubierta y fachadas, comparándolo con las bodegas aledañas. En lo que respecta a la iluminación natural, se realiza un análisis lumínico para determinar el tipo de domo a introducir en la cubierta.

#prefabricados #modular #ceroresiduos #circularidad #ceromantenimiento #panelessolares #regeneración #Diseñodisruptivo #reutilización #seguridad

PAR 222

Zibatá, Querétaro

Vivienda unifamiliar prefabricada con cajones de concreto aligerado. Construir sin desperdicio, agilizar tiempos de obra, aprovechar la inercia térmica del material, o resolver la estructura desde la concepción arquitectónica, son algunas de las ventajas que nos ofrece este tipo de material. Integración de la naturaleza, iluminación natural, renovación de la calidad del aire y búsqueda de brisa que permita refrescamiento de los espacios, búsqueda de visuales que generen espacios de privacidad y silencio, fueron prioridad en el proyecto. ¿Y si diseñamos una vivienda diferente a lo que ofrece el mercado que nos permita diseñar desde un "integrated design" en el que los % de ahorro de agua y de energía son prioridad desde el anteproyecto?